Image 1
Image 2
Image 3
Image 4
Image 5
Image 6
Image 7
Image 8
Image 9
Image 10
Image 11
Image 12
Image 13
Image 14
Image 15
Image 16
Image 17
Image 18
Image 19
Image 20
Image 21
Image 22
Image 23
Image 24
Image 25
Image 25
Image 26
Image 27
Image 28
Image 29
1 / 3

Self-Build Cabin

Architecture project. Georgian Bay, Canada, 2024-2026 (ongoing).

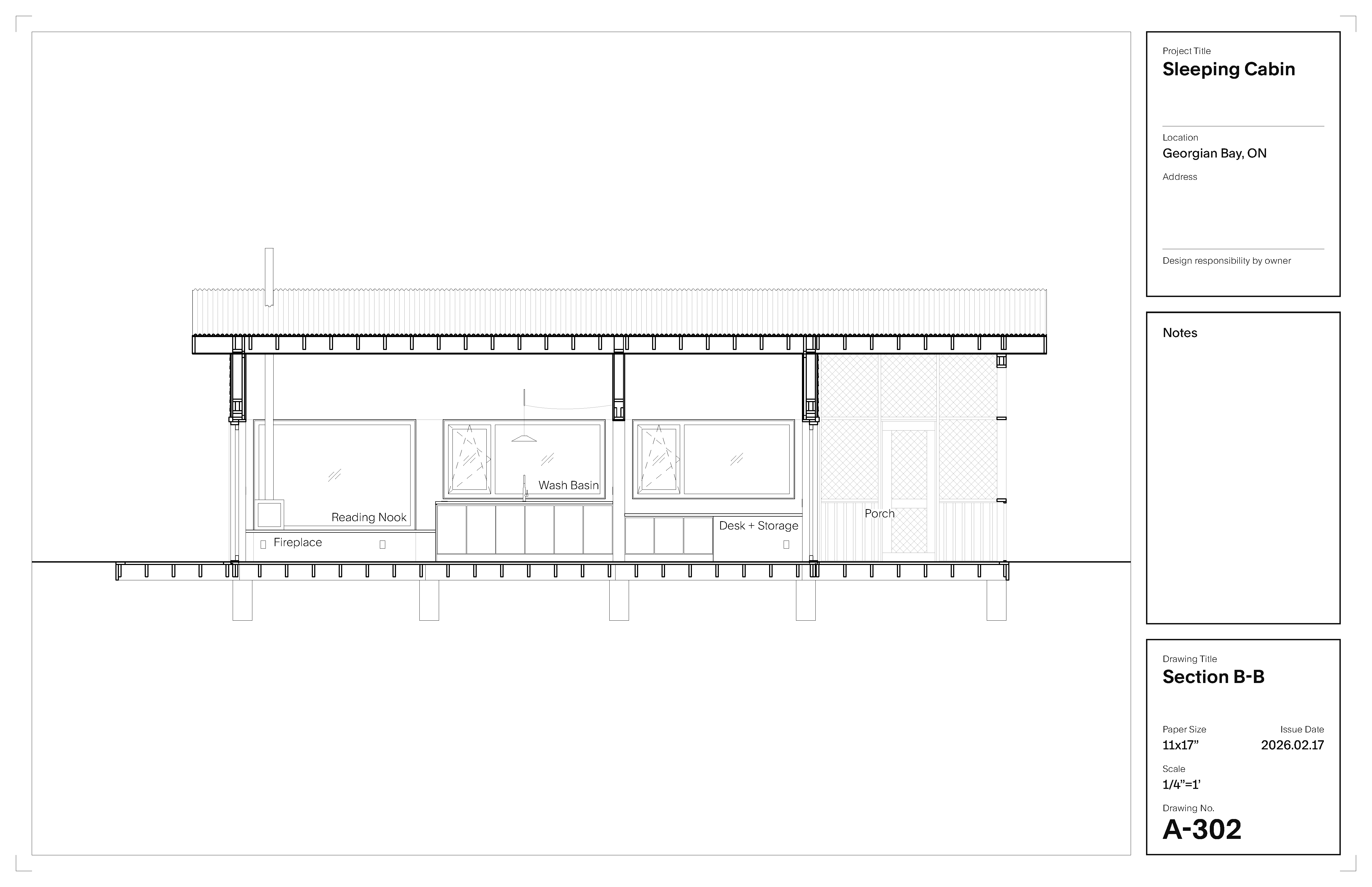
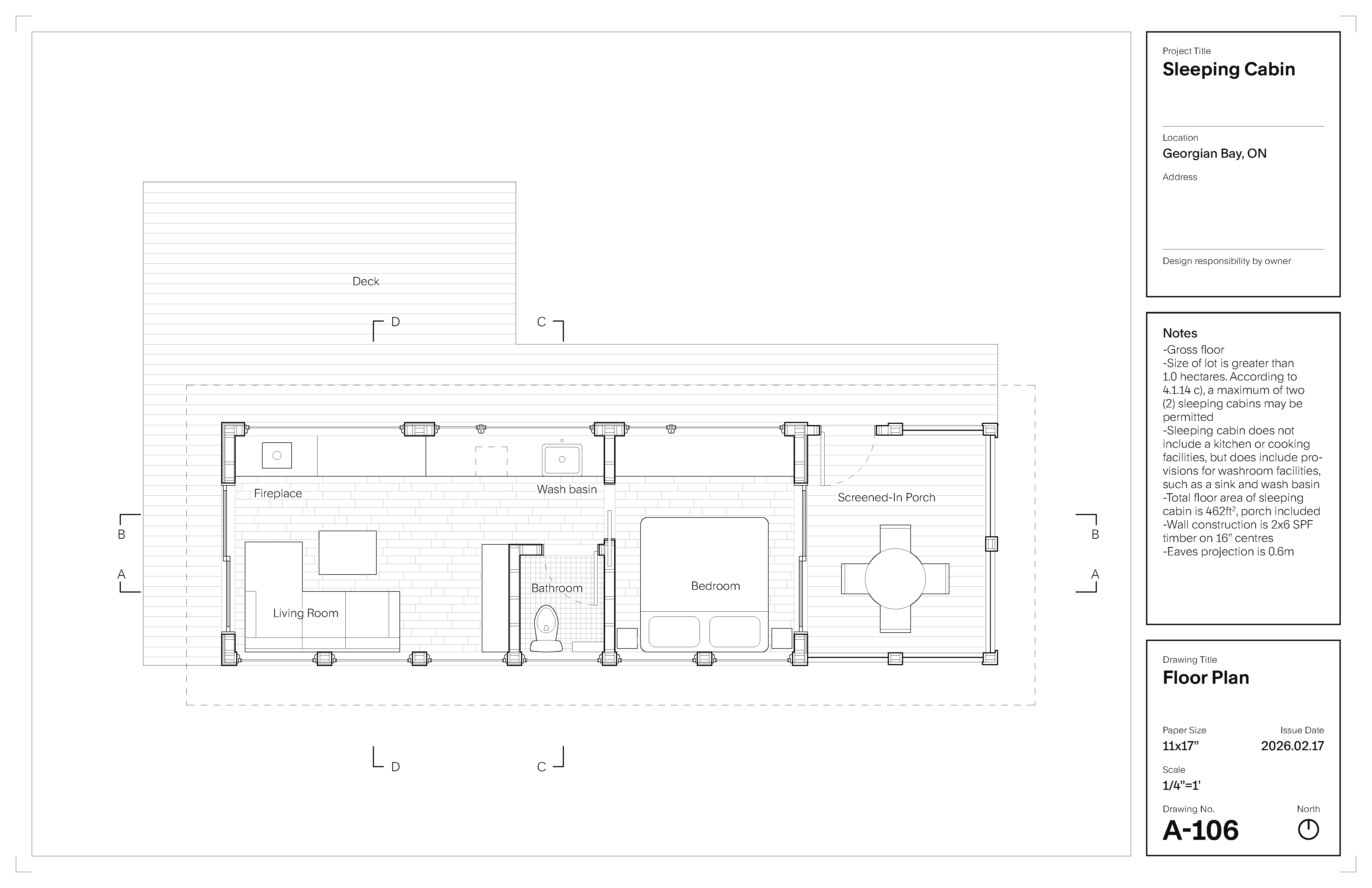
Designed while completing my March Thesis at the AA School in London, with construction beginning upon graduating in 2024. This was meant as the testing ground for ideas explored in my Thesis (see The 500-Year House). Located on an island in Northern Ontario, this cabin is built using local, natural materials, with the labour of friends and family. Instead of mass-timber and heavy machinery, the structure of the cabin is built using tilt-up construction of insulated box-section beams and columns (2x8s and 2x10s nailed on edge and stuffed with hemp). Self-building allows us to invest in high-quality, durable materials, due to the low cost of labour. The cabin uses cedar shingles, aluminium windows, and a steel roof. The interior is clad using birch plywood to the top of the window datum, with drywall above to visually increase the interior height.

The structure divides the cabin into a 1x4 grid; each zone defines a use. The cabin is oriented east to west; the bedroom is on the eastern, morning side of the cabin, and the living and dining space is on the western, sunset side. The cabin is long and narrow along this axis to reduce heavy wind-loads from the prevailing westward winds, while sitting comfortably on the rocky, irregular site. Views to the south are concealed from the existing cottage with clerestory windows that allow cross-ventilation, while large windows open on the views to the north. This project is scheduled for completion in the summer of 2026.